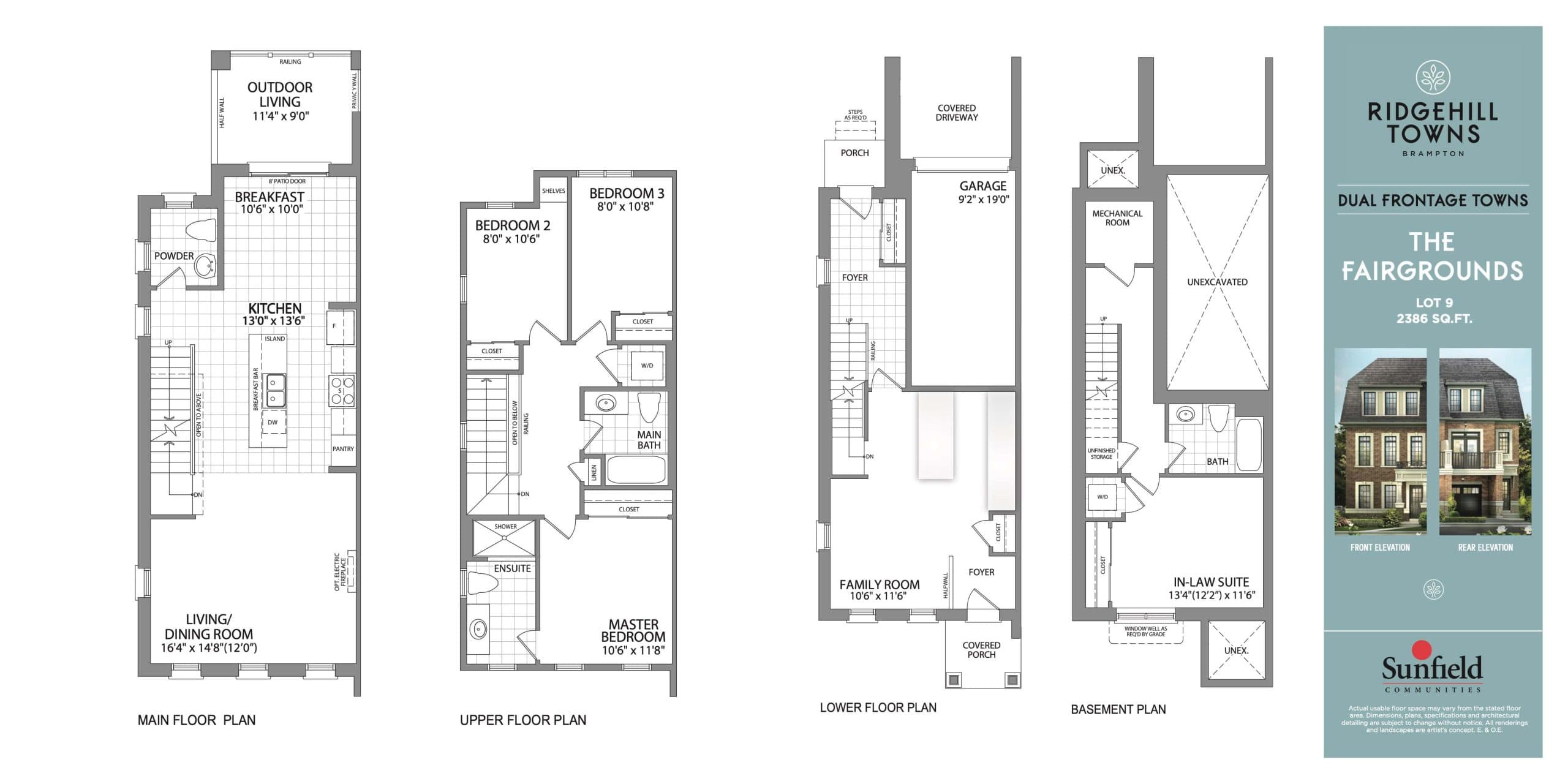
The Fairgrounds — Ridgehill Towns | Mark Savel